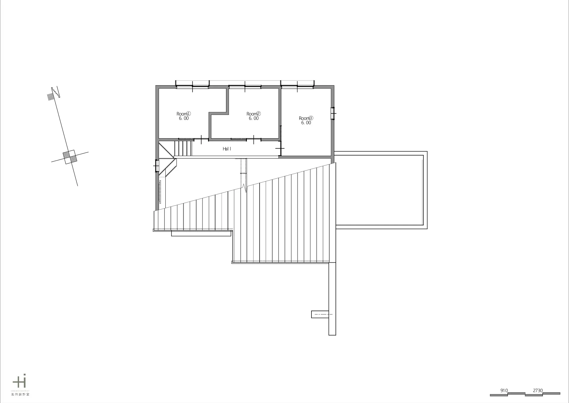
ファーストプラン:下田井のもみの木のスキップフロア
2025/05/02
----------------------------------------------------------------------
池田設計室
〒760-0080
住所:香川県高松市木太町1868-2 ラ・トゥール林道1F中東
電話番号 :087-813-2457
高松市で新築住宅の設計に注力
高松市でちょうどいいデザインを
----------------------------------------------------------------------


