Gallery
鬼無のコートハウス
鬼無のコートハウス
建物規模
木造2階建 専用住宅+ガレージ
130.97㎡ 39.56坪
施工
ヨシナ建築
竣工
2024年12月
その他
長期優良住宅認定
耐震等級3
UA値 0.46(等級6)
C 値 0.1
ROOM TOUR 動画公開中 こちらから
コンセプト
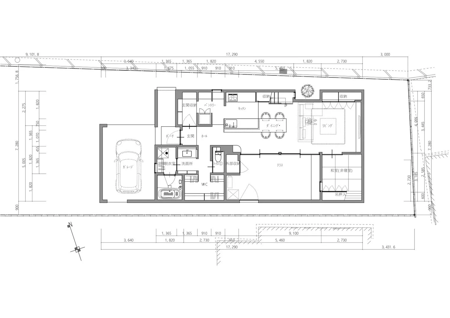
鬼無駅のすぐそば、新規分譲地に隣接する古家屋の解体からお家づくりが始まりました。
東西に細長い敷地形状と高さのある南側隣地の住宅を考慮した設計を行い、中庭に面した吹抜から太陽光を取り入れるコートハウスをご提案しました。
内部は敷地の形状を活かした、奥行きのあるLDKと吹抜の高天井が伸びやかな空間となっています。
クルミの無垢フローリングの風合いに全体を合わせたコーディネートで多幸感あふれるインテリアデザインを目指しました。









































